Education
Project: Holloway SEN School|
Location: Islington|
Client: Islington Borough Council
Project Description:
The development of a SEN school within an existing secondary school.
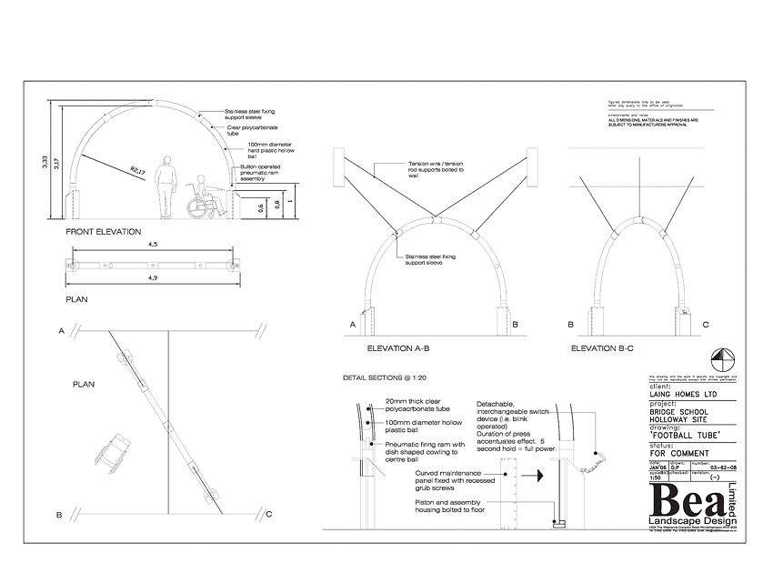
Bea Landscape Design were tasked with conceptually designing bespoke, interactive equipment which were then developed further and finally manufactured by Imagination, a company specialising in interactive displays for museums and exhibitions.
The final result was a dynamic multi use space suitable for formal as well as social parts of the curriculum.
